Ez a kislakás nőies, huncut részletekkel és tértágító tükrökkel. Imádom! Annyira kidolgozottak és átgondoltak a részletek, az elhúzható falak, a rengeteg tárolóhely, a hatalmas tükrök.
És a beépített loggia a kedvencem, ahogy a dolgozósarkot kialakították egy kis burkolatváltással, megtartva a loggia eredeti jellegét. De az elrejthető ágy sem rossz, amit felhajtva eltüntetjük a szem elől a lila falat, és az éjjeli lámpákat. A konyha elé húzható üvegfal sok helyen jól jönne, amikor el kell rejteni a konyhai csatateret.
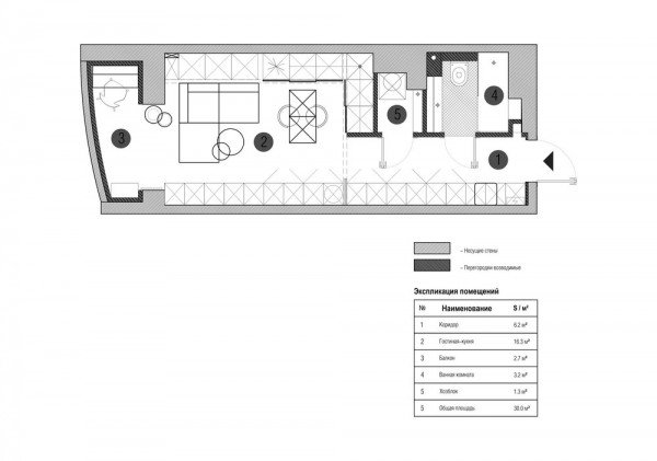
Egyetlen hosszú tér, ami tulajdonképpen egy szobát jelent.
Neked hogy tetszik?
A loggia felől belátjuk az egész lakást.
A konyhából nézve láthatjuk az egész falat beborító tárolószekrényt.
A bejárat felől a jobb oldalon lévő tükrös szekrényajtók megnövelik a teret.
A loggia a kedvencem.
A konyha elrejtve a fal mögé… (asztal nélkül)
A konyha az étkezőasztallal.
Ilyen a hálórész, amikor az ágyat lehajtják.
***
Ha szeretnél segítséget kérni a lakásod berendezéséhez vagy átalakításához, akkor keress bátran a www.paneltunder.hu oldalon.
Kis lakásban élőknek segítek megtalálni a legjobb elrendezést, hogy maximálisan kihasználhassák a lakásukban rejlő lehetőségeket.














Kommentek
Kommenteléshez kérlek, jelentkezz be: