Amikor leteszem magam elé az alaprajzot, mindig az az első gondolatom, hogy hogyan lehetne kivenni a falakat. Szeretem a nagy tereket, és amikor azt kérik tőlem, hogy minden helyiségen legyen ajtó, nekem sikítozik a lelkem a bezártság ellen. Ilyenkor megkérdezem a férjet, hogy miért szeretné bezárni a feleségét a konyhába, amíg ő a vendégekkel beszélget a nappaliban, vagy a feleséget, hogy miért akarja száműzni a férjét az étkezőbe vacsorázni, amíg ő a gyerekkel játszik a nappaliban.
Na de kinek a pap, kinek a paplan. – Így hallottam ezt manapság.
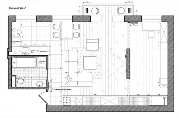
Szóval ebben a lakásban az tetszik, hogy 50 m²-en szinte az egész tér egy légtérben van. Ha akarom, intim a hálószoba, ha akarom, egybenyílik a nappalival, és láthatom, ahogy a gyerek szétpakolja a játékokat.
Az egész falat padlótól a mennyezetig fogantyú nélküli gardrób foglalja el, néhány nyitott fülkével megtörve az egyhangúságot. Az erkély kihasználása maximális: dolgozószoba lett belőle. Nagyszerű ötlet, ha nincs szükségünk erkélyre.
De a kedvencem a kék ablakfülkék, és az, ahogy ez a szín végigkíséri az egész berendezést. Meg persze a lenyitható ágy.
Neked hogy tetszik?
***
Ha szeretnél segítséget kérni a lakásod berendezéséhez vagy átalakításához, akkor keress bátran a www.paneltunder.hu oldalon.
Kis lakásban élőknek segítek megtalálni a legjobb elrendezést, hogy maximálisan kihasználhassák a lakásukban rejlő lehetőségeket.











Kommentek
Kommenteléshez kérlek, jelentkezz be: